Lisboa, Odivelas, Ramada e Caneças, Caneças (Caneças)
Moradia T8 (Dividida em 2 Casas) para Venda em Canecas - Oportunidade Única!
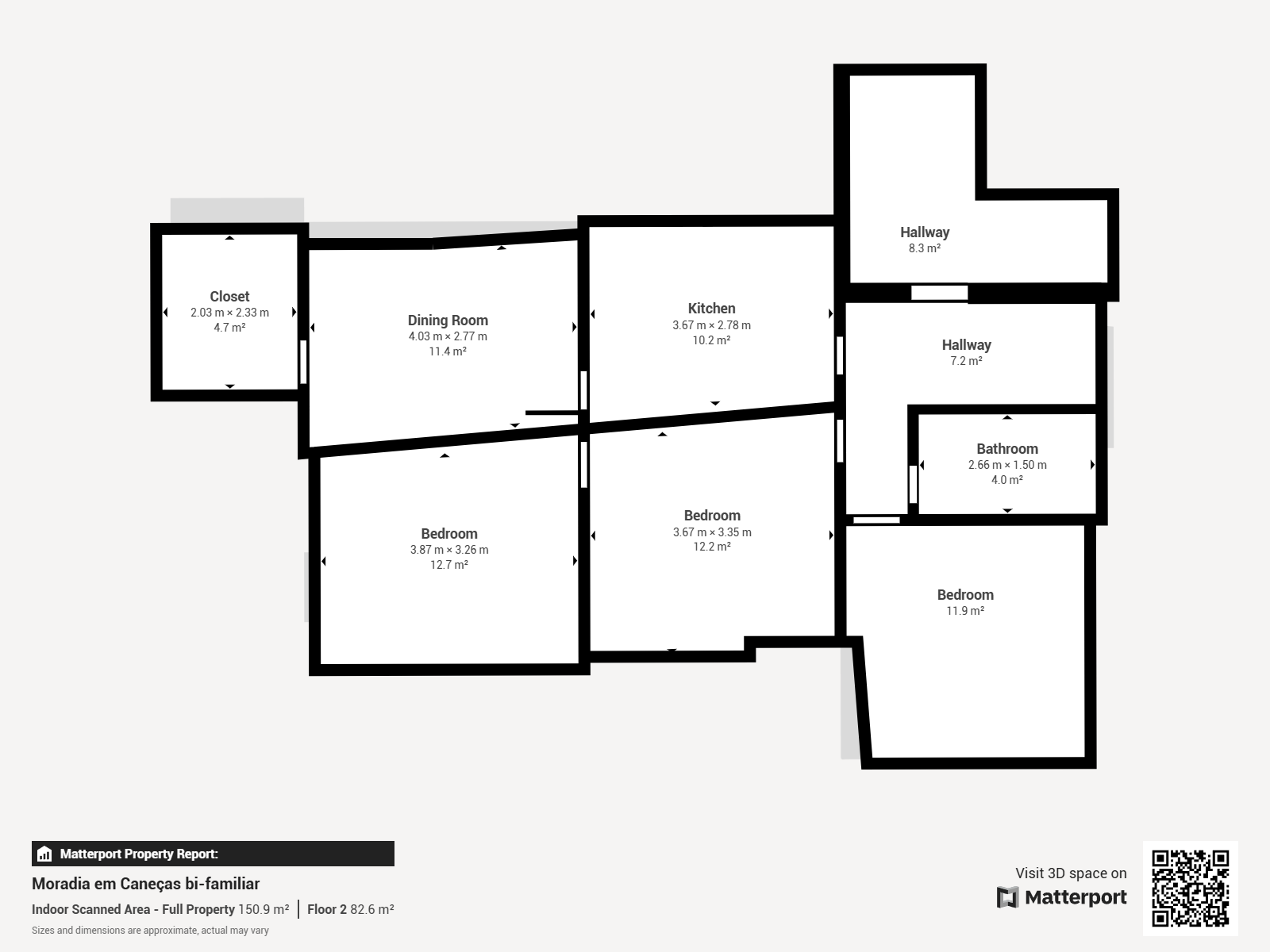
Apresentamos esta moradia com 2 casas independentes, localizada em Canecas, numa zona tranquila e sossegada, perfeita para quem procura um espaço amplo e com excelente exposição solar.
Com 112m² de área casa habitação, esta moradia oferece um grande potencial para diversos tipos de famílias ou até como investimento.
Estado de Conservação:
1º Piso: Já está pronta a habitar, oferecendo conforto imediato para quem procura um espaço pronto para morar.
Rés-do-chão: Requer cuidados e remodelação para atingir o seu máximo potencial, sendo uma excelente oportunidade para quem quer personalizar o espaço ao seu gosto.
Principais Características:
Área bruta: 112m2 + 112m²
Divisão: 2 casas independentes
Tipo de imóvel: Moradia T4 + T4
Ano de construção: 1971
Comodidades: Despensa, excelente exposição solar, e bom isolamento térmico e acústico
Certificado Energético: D
Localização: Zona sossegada e de fácil acesso, ideal para famílias ou quem deseja um local tranquilo para viver.
Características Adicionais:
Isolamento Térmico e Acústico: Garantindo um conforto extra durante todo o ano.
Boa Exposição Solar: Aproveite ao máximo as horas de sol com as amplas janelas e a orientação privilegiada.
Comodidades: A moradia inclui uma despensa e várias divisões que podem ser adaptadas às suas necessidades.
O preço de venda é de 1.698€/m², oferecendo uma excelente relação qualidade/preço para quem procura um imóvel com grande potencial de personalização e valor de mercado.
Aguardamos a tua visita!